Tu espacio perfecto en Bogotá

Apartamentos VIS tipo loft con ubicación estratégica, pensados para vivir mejor o generar valorización desde el primer momento.

Invierte en Bogotá con visión desde el primer paso


Viventa Plaza es un proyecto VIS con apartamentos tipo loft que abre oportunidades para quienes entienden que una buena inversión empieza por elegir bien: ubicación estratégica, diseño inteligente y el momento correcto. Un formato ideal para generar valorización y adaptarse a las nuevas formas de vivir y rentar.

Ubicación que conecta tu presente con tu futuro


Cl. 25 Sur #70B-19

Bogotá, Colombia

Estación de Metro (POT) A 1 cuadra · Av. Primero de Mayo
CC Plaza de las Américas 5 minutos en auto
Hospital de Kennedy 13 minutos
Parque Mundo Aventura 7 minutos
Centro Médico Colsubsidio 5 minutos
Home Sentry Cercano al proyecto
Clínica de Occidente Cercano al proyecto
RoyalFilms Cercano al proyecto
Cine Colombia Cercano al proyecto
Estadio de techo Zona deportiva cercana

Un proyecto pensado para generar valor

Menos unidades, más privacidad y una operación más eficiente. Solo 4 apartamentos por piso para un entorno más tranquilo y exclusivo.

7
Pisos
24
Apartamentos
29-31
m² aprox.
áreas construidas
4
Aptos por piso
VIS · Vivienda de Interés Social
150
SMMLV precio tope
Viventa Plaza - Render exterior

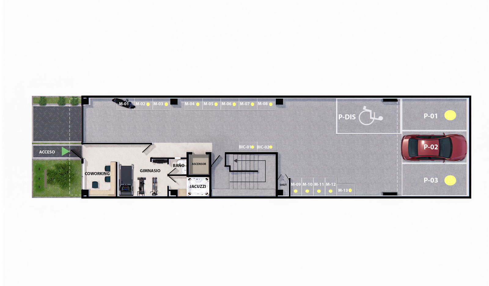
Amenidades que suman valor a tu inversión


Haz clic en cada zona para explorar los espacios.

Terraza BBQ
Terraza Cine
Terraza Chimenea
Jacuzzi
Gimnasio
Coworking

Zona BBQ

Comedor al aire libre en la terraza con vista panorámica.

Terraza

Las imágenes, renders y ambientaciones son ilustrativos y pueden presentar variaciones frente al producto final entregado.

Tecnología que optimiza tu inversión


Soluciones inteligentes que elevan tu calidad de vida y protegen tu patrimonio.

01

Sistema inteligente de acceso digital

Control de acceso desde tu celular, mayor seguridad sin llaves físicas.

02

Sistema moderno de citofonía

Comunicación directa con portero y visitantes desde cualquier lugar.

03

Mayor seguridad, menores costos

Tecnología que reduce costos de mantenimiento y administración.

Así se puede ver tu apartamento en el futuro


Producto ofrecido en obra gris: un lienzo en blanco para tu proyecto. Elige tu modelo ideal.

Interior
Modelo A - Con acabados
Con acabados Obra gris

Apartamento Modelo A

Interior

Diseño compacto y eficiente con excelente iluminación natural. Perfecto como primera inversión o para renta.

32.89
m² Área construida
28.99
m² Área privada
Quiero este modelo
Interior
Modelo B - Con acabados
Con acabados Obra gris

Apartamento Modelo B

Interior

Apartamento tipo loft con distribución funcional, ideal para vivir o rentar. Entregado en obra gris para que lo personalices a tu gusto.

31.06
m² Área construida
26.73
m² Área privada
Quiero este modelo
Exterior
Modelo C - Con acabados
Con acabados Obra gris

Apartamento Modelo C

Exterior

El modelo más amplio del proyecto. Distribución inteligente que maximiza cada metro cuadrado.

28.73
m² Área construida
25.33
m² Área privada
Quiero este modelo
Exterior
Modelo D - Con acabados
Con acabados Obra gris

Apartamento Modelo D

Exterior

Configuración versátil que permite múltiples distribuciones. Ideal para personalizar según tu estilo de vida.

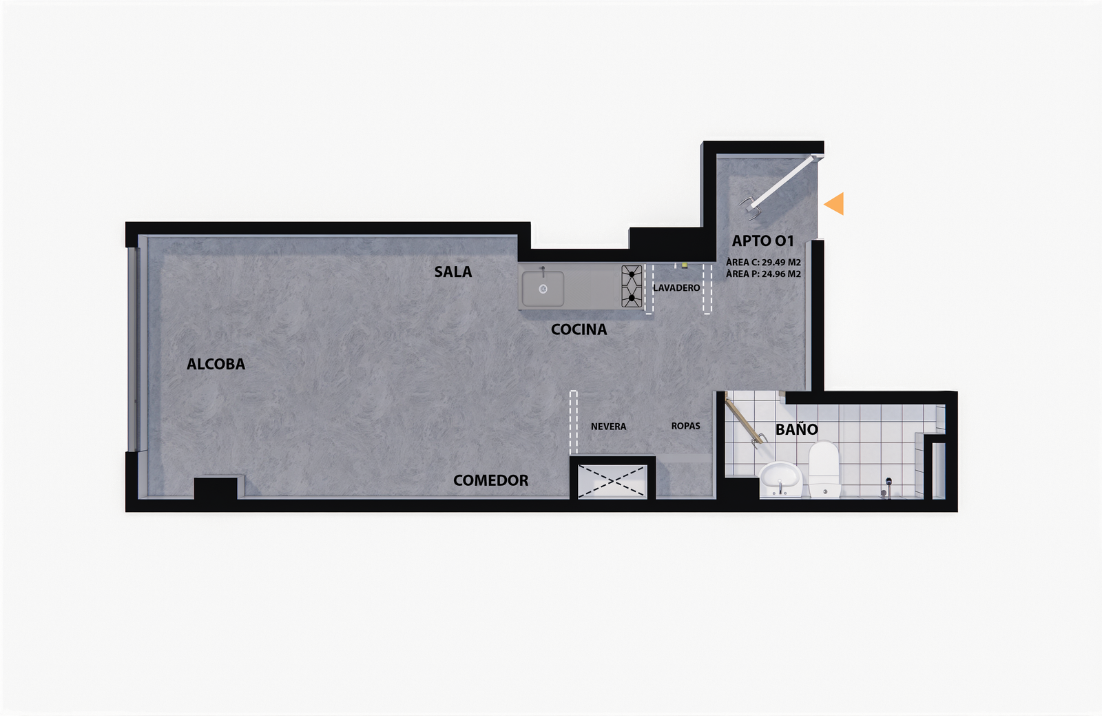
29.49
m² Área construida
24.96
m² Área privada
Quiero este modelo

Planos del proyecto


Planta Tipo 1
Planta Tipo 1
Planta Tipo 2
Planta Tipo 2
Planta Tipo 3
Planta Tipo 3
Planta Tipo 4
Planta Tipo 4
Planta Piso 1
Planta Piso 1
Planta Piso Tipo
Planta Piso Tipo
Planta Cubiertas
Planta Cubiertas

Recorrido 3D


Explora cada espacio de Viventa Plaza como si estuvieras ahí. Navega libremente por el proyecto.

Nuestros aliados


Aliado 1 Aliado 2 Aliado 3 Aliado 4 Aliado 5 Aliado 1 Aliado 2 Aliado 3 Aliado 4 Aliado 5
Viventa Plaza

¿Te interesa Viventa Plaza?


Hablémoslo

Déjanos tus datos y un asesor especializado te contactará pronto con toda la información del proyecto.

Email viventa.plaza@cimientos.co
Web www.cimientos.co
Dirección del proyecto Cl. 25 Sur #70B-19, Bogotá
Horarios Lun - Vie: 8am - 6pm
Sáb: 9am - 4pm